2 Lot Available SMSF FIRB

[Estate]

Canberra, Watson, ACT, 2602,

$754,900

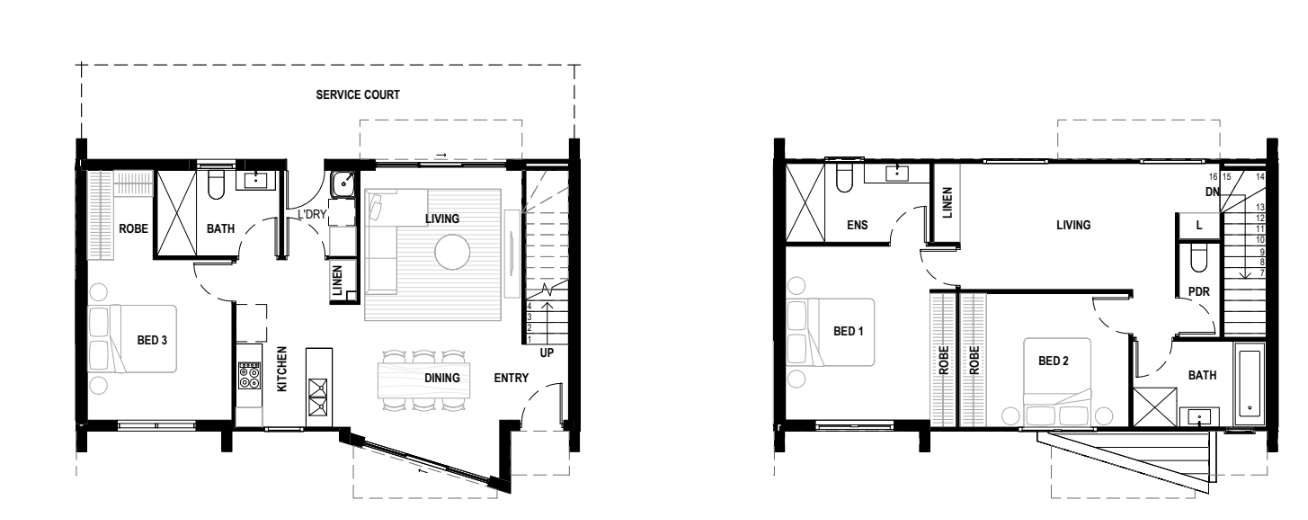
2 Beds
2 Bath
2 Garage

*Please be advised that some lots/units may need confirmation of availability. Kindly ensure to check availability first by emailing or phoning us.*

Real communities are established when we embrace   the spaces surrounding our homes. Nørrebro combines scenic parks, striking architecture and a lively central forecourt. With options from single level apartments to two storey townhouses and terraces, the mix will encourage a vibrant community. Nørrebro provides places to play  and areas to gather for markets and entertainment.  Enjoy the village feel of corner cafes and grocers a short stroll from your door.

Spend more time outdoors in your style. Nørrebro provides a strong connection to the environment with a variety of landscaped spaces. Special care has been taken to work with the terrain and to keep the established trees. The urban forecourt is the heart of Nørrebro, a social landscape providing room to cultivate community with alfresco dining, galleries, performance art and community gardens. Further on, a large park will invite kids and families to play in the open air, with an attractive natural playground and areas for ball games. If you’re looking for a quiet retreat, head to the pocket parks where you can wind down in the sun, or take a walk through the native forest. Nørrebro’s landscaping opens the neighbourhood with new facilities, pathways and green streetscapes. The different areas, with open and sheltered spaces will make sure there is somewhere to enjoy in all Canberra’s seasons. 

What could be better than an Inner North lifestyle? It’s that rich combination of amenities, proximity to the city and European parkland that gives it a unique quality. Watson is where the city meets the bush. Take a brisk walk up Mt Majura to greet a misty sunrise, or wander through the native brush at Justice Robert Hope Park. 

Beyond the precinct, new experiences are never  far away. The Inner North is peppered with excellent restaurants to suit every taste. Enjoy the lively café culture, often teamed with live music or performing arts. You’re minutes from Lonsdale Street and the City Centre, offering an eclectic mix of upmarket restaurants, world class shopping, global exhibitions and a rich arts scene. It’s easy to focus on your wellbeing with everything  so close. Crunch into the fresh produce at the farmer’s markets and source your food from local experts. Become a member of the Yowani Country Club or  the Canberra Tennis Centre. The flat ground makes  for excellent cycling too. Ride into the city and meet  your exercise quota before your morning coffee.

Nørrebro offers a range of beautiful one, two and three bedroom apartments crafted for comfort.  Each apartment has been thoughtfully designed to feel warm and easy to live in. The engineered floorplans take account of the space and light while the natural tones complement the environment.  The carefully selected materials and inclusions will  be attractive, robust and to stand the test of time. 

Select from a range of carefully planned two storey  townhouses and terraces for a contemporary, urban lifestyle. The townhouses have been designed for maximum living space and privacy. Each home is engineered to conserve energy costs and create a pleasant environment. All the homes have been positioned with care to take the best advantage of the mountain and city views. The landscaped pocket parks and community gardens will provide outdoors access without the maintenance.

Rent Weekly $660
Rent Monthly NA
Rent Yearly NA
Rental Yield Return 4.55%
Land Registration
Land Size 25m²
House Size 93.00m²

Rent Weekly $660
Rent Monthly NA
Rent Yearly NA
Rental Yield Return 4.55%
Land Registration
Land Size 22m²
House Size 93.00m²

Lorraine Hollitt

0411750206